Leave a Message

Thank you for your message. I will be in touch with you shortly.

Explore My Properties

Property Description

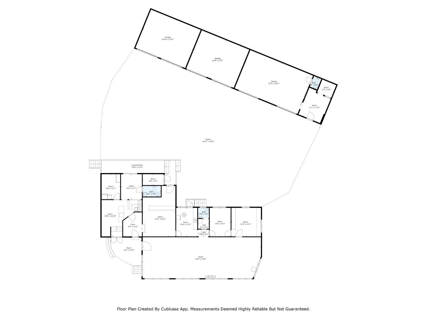
Retail Visibility, Stability, Flexibility, and Cash Flow - Over 6.00% Current Cap Rate: This commercial investment offers prime frontage and two established retail suites serving the neighborhood with additional income from rear storage units, benefitting from stable leases and diversified cash flow. With 100% occupancy, long-standing tenants, and stable in-place income, and month-to-month lease terms this asset appeals to local or regional investors seeking immediate cash flow, as well as long-term upside through either lease optimization or residential redevelopment. Garage doors are approximately 10 ft tall and the interior height of the garages are approximately 14 ft. New roof on rear building 2020. Front Building consists of 2,590 SF of retail space divided into two (2) primary retail suites, each with their own bathroom: 771 and 771-A. Utilities include two separate electric meters with shared gas, water, sewer, and garbage. Rear Building includes 1,900 SF of industrial self-storage divided into three (3) units: 771-B, C, and D each with six (6) high-lift garage doors. Unit B incorporates an additional front office and private bathroom. Utilities include one electric and one water meter servicing all three commercial storage Units B, C, and D. Shared sewer and garbage.

Overview

Property Status
Sold
Lot Size
9,975.24 Sq.Ft.
MLS ID
ML82021450
Property Type
Commercial
Year Built
1937

Features & Amenities

Total Area
4,490 Sq.Ft.
Neighborhood
Santa Cruz County
Stories
1
Roof
Tar/Gravel, Tile
Parking
Lighted, Unassigned
Heat Type
Electric, Forced Air, Natural Gas, Space Heater, Central
Air Conditioning
Ceiling Fan(s), Other
Sewer
Public Sewer
Substructure
Slab, Concrete Perimeter
Sales Price
$910,000
Real Estate Tax
$12,462/yr
Maintenance Fee
$1,377/mo
Zoning
CT

Downloads

771 Freedom Blvd

Schedule a Tour

I would love to help you see this beautiful home! As a full-service brokerage, I can help you tour. Please submit an offer, and answer questions about the buying process.

Thank you

for your interest in 771 Freedom Boulevard, WATSONVILLE, CA 95076

771 Freedom Blvd
Navigate

Santa Cruz County

Explore Santa Cruz County

read more
771 Freedom Blvd
explore in 3d

I'm Interested In

771 Freedom Blvd

Browse My

Current Properties

  • 4360 Opal Cliff Drive For Sale

    $7,250,000

    4360 Opal Cliff Drive

    4360 Opal Cliff Drive, SANTA CRUZ, CA 95062

    • 3 Beds
    • 2 Baths
    • 2,427 Sq.Ft.
  • 251 High St Sold

    $6,650,000

    251 High St

    251 High Street, Santa Cruz, CA 95060

    • 5,454 Sq.Ft.
  • 721 41st Ave Sold

    $2,513,000

    721 41st Ave

    721 41st Avenue, SANTA CRUZ, CA 95062

    • 2,320 Sq.Ft.
  • 369 Sea Ridge Rd Sold

    $2,325,000

    369 Sea Ridge Rd

    369 Sea Ridge Road, APTOS, CA 95003

    • 4,805 Sq.Ft.
  • 410 35th Ave Sold

    $1,950,000

    410 35th Ave

    410 35th Avenue, SANTA CRUZ, CA 95062

    • 2 Beds
    • 2.5 Baths
    • 1,216 Sq.Ft.
  • 247 High Street For Sale

    $1,895,000

    247 High Street

    247 High Street, SANTA CRUZ, CA 95060

    • 5,858 Sq.Ft.
  • 237 Darwin St Sold

    $1,850,000

    237 Darwin St

    237 Darwin Street, Santa Cruz, CA 95062

    • 2,628 Sq.Ft.
  • 120 Stockton Avenue Sold

    $1,800,000

    120 Stockton Avenue

    120 Stockton Avenue, CAPITOLA, CA 95010

    • 3,345 Sq.Ft.
  • 24 Grainger Ln Sold

    $1,750,000

    24 Grainger Ln

    24 Grainger Lane, SANTA CRUZ, CA 95060

    • 5,360 Sq.Ft.
  • 803-805 Broadway Sold

    $1,660,000

    803-805 Broadway

    803-805 Broadway, Santa Cruz, CA 95062

    • 2,543 Sq.Ft.
  • 803-805 Broadway Sold

    $1,660,000

    803-805 Broadway

    803-805 Broadway, Santa Cruz, CA 95062

    • 2,543 Sq.Ft.
  • 247 High St Sold

    $1,625,000

    247 High St

    247 High Street, SANTA CRUZ, CA 95060

  • 1430 Merrill St Sold

    $1,545,000

    1430 Merrill St

    1430 Merrill Street, SANTA CRUZ, CA 95062

    • 1,630 Sq.Ft.
  • 457 Monterey Drive Sold

    $1,410,000

    457 Monterey Drive

    457 Monterey Drive, APTOS, CA 95003

    • 3 Beds
    • 2.5 Baths
    • 1,800 Sq.Ft.
  • 143 Swift St Sold

    $1,378,000

    143 Swift St

    143 Swift ST, SANTA CRUZ, CA 95060

    • 2 Beds
    • 1 Bath
    • 830 Sq.Ft.
  • 7415 Soquel Sold

    $1,200,000

    7415 Soquel

    7415 Soquel, APTOS, CA 95003

  • 3300 N Main St Sold

    $1,150,000

    3300 N Main St

    3300 N Main ST, SOQUEL, CA 95073

    • 6 Beds
    • 4.5 Baths
    • 2,247 Sq.Ft.
  • 509 Gertrude Ave Sold

    $1,042,500

    509 Gertrude Ave

    509 Gertrude AVE, APTOS, CA 95003

    • 2 Beds
    • 1 Bath
    • 924 Sq.Ft.
  • 771 Freedom Blvd Sold

    $910,000

    771 Freedom Blvd

    771 Freedom Boulevard, WATSONVILLE, CA 95076

    • 4,490 Sq.Ft.
  • 459 Cloudview Dr Sold

    $650,000

    459 Cloudview Dr

    459 Cloudview Drive, WATSONVILLE, CA 95076

    • 2 Beds
    • 1.5 Baths
    • 1,062 Sq.Ft.
  • 901 River Street Sold

    $600,000

    901 River Street

    901 River Street, SANTA CRUZ, CA 95060

    • 1 Bed
    • 1.5 Baths
    • 1,095 Sq.Ft.
  • 125 Gilchrist Way Sold

    $525,000

    125 Gilchrist Way

    125 Gilchrist Way, WATSONVILLE, CA 95076

  • 789 Green Valley Rd #133 Sold

    $420,000

    789 Green Valley Rd #133

    789 Green Valley Road Unit: 133, WATSONVILLE, CA 95076

    • 3 Beds
    • 2 Baths
    • 1,950 Sq.Ft.
View All

Follow Us On Instagram